MoVida Brackstedt, Wolfsburg
Rent your home in Brackstedt, Wolfsburg
Next event on
Sunday, 26.04.2026
12 am – 2 pm
Open House
Gerberstr. 55b,
38448 Wolfsburg
MoVida Brackstedt, Wolfsburg – your house for rent
Convenient infrastructure for your daily life
At your new home in Brackstedt, Wolfsburg all your daily essentials are within easy reach – schools, daycare centres, shops and public transport are accessible by bike or on foot. Then when you want to unwind at the end of the day your home is perfectly located to get out for a relaxing walk in the surrounding fields and forests. Wolfsburg’s vibrant city centre is also just a short drive away, with its diverse cultural and leisure offerings. The nearby B188, B248 and A39 motorways mean you’re always well connected both regionally and nationwide – ideal for commuting and weekend getaways.
Nature & open space
Surrounded by green spaces, country lanes and scenic cycle paths, Brackstedt and its surroundings invite you to get outside and unwind. Whether you prefer a leisurely walk or an intense bike ride – relaxation and fun starts right outside your front door. In Brackstedt you can enjoy the tranquillity of a green and peaceful setting, whilst enjoying all the benefits of proximity to Wolfsburg city centre.
Excellent transport connections
Whether by car, bus or train – Brackstedt offers excellent transport connections in every direction. Regular bus services provide quick access to the surrounding area as well as Wolfsburg city centre. The B188 federal highway and the A39 motorway are only a few minutes away, ensuring short journeys to Wolfsburg, Gifhorn and Braunschweig. This allows for maximum flexibility in your everyday life as well as regional connectivity – ideal for commuters and families.
Energy-efficient living
Your new home is highly energy efficient, in line with KfN-standard, and feature sustainable energy systems with air source heat pumps and solar panels. This ensures a pleasant room climate, low running costs and protects the environment.
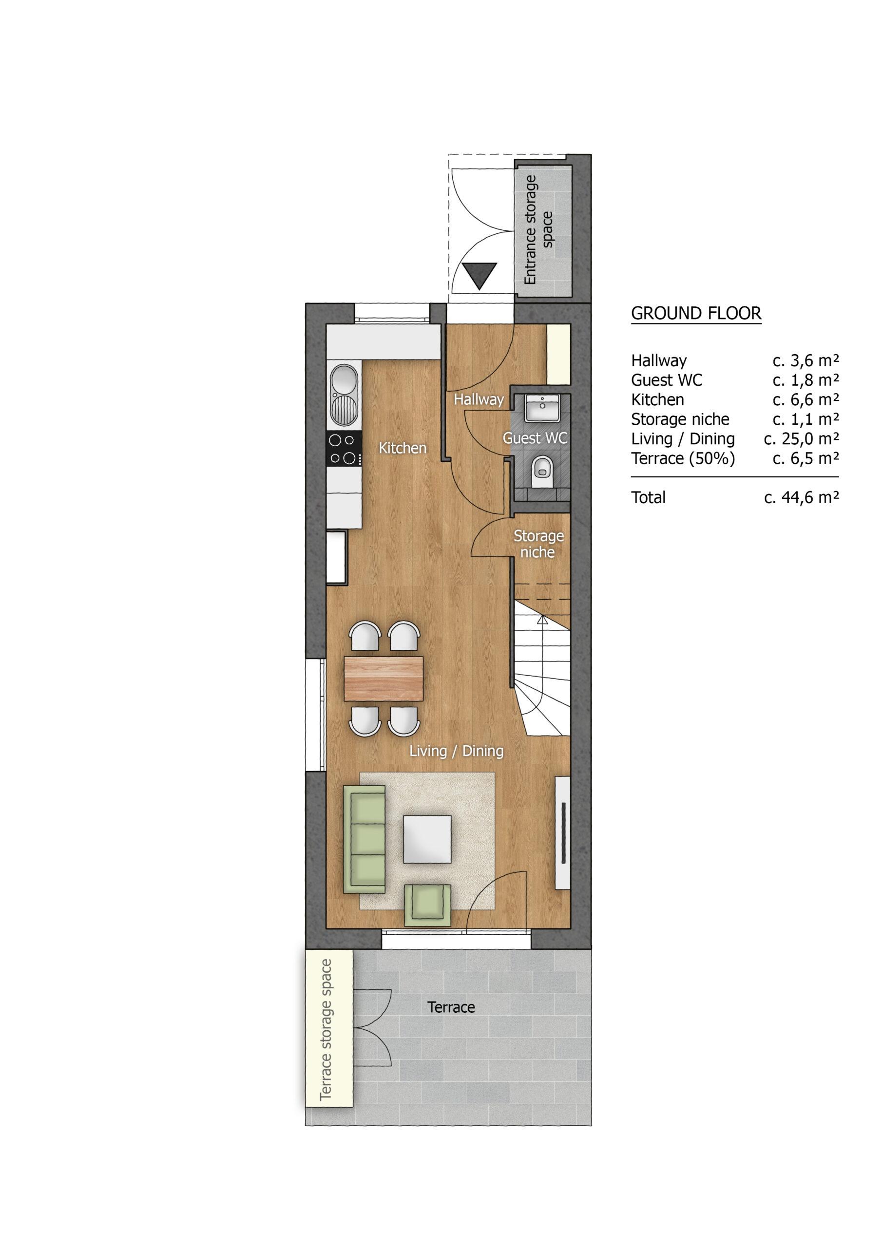
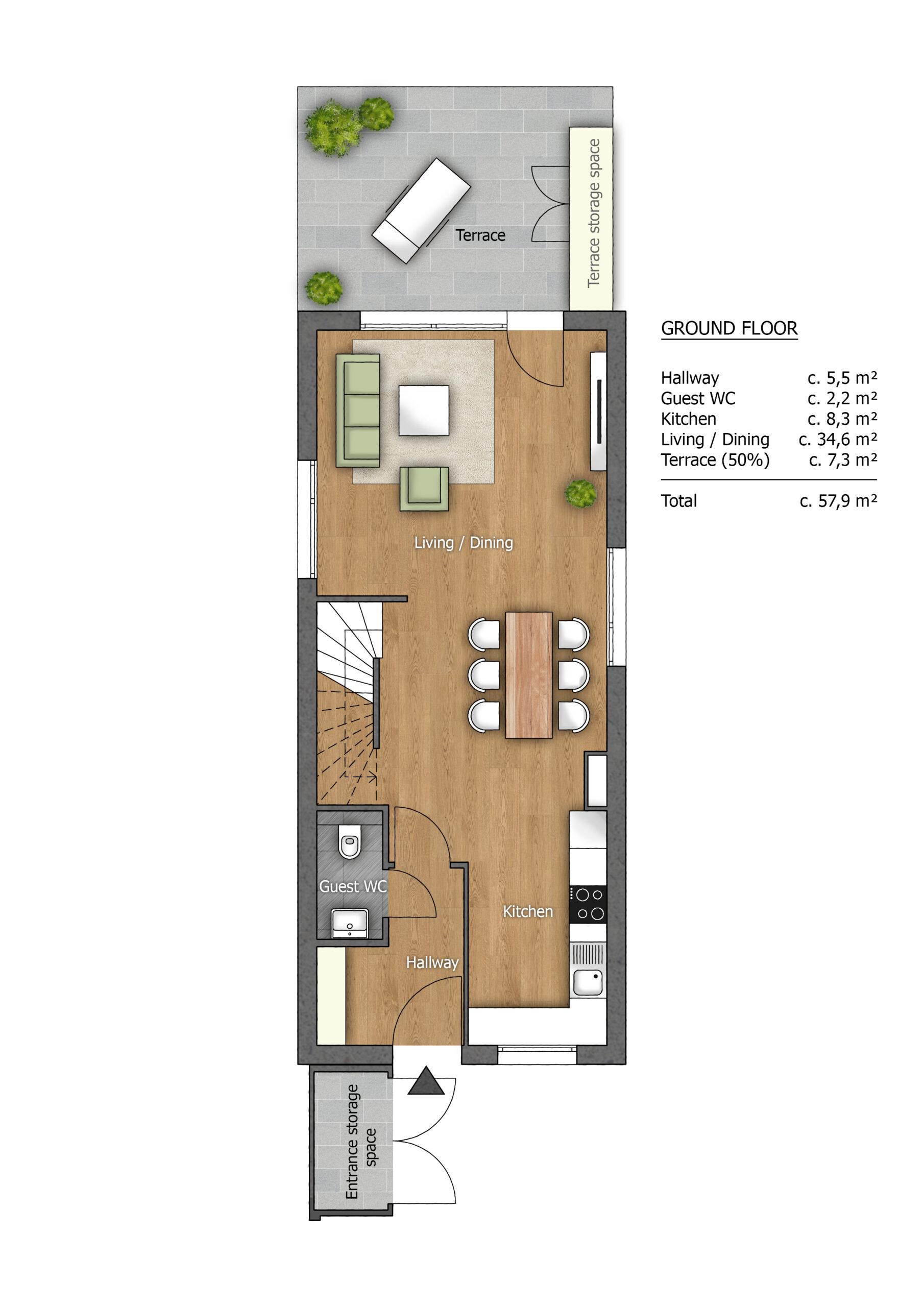
House Finder
Here you will find all the information and prices for your new home
How to rent your dream home with MoVida
How to rent your dream home with MoVida
Our house types at a glance
Features & energy efficiency
Features at a glance
Fitted kitchen included
Sustainable energy use
Features at a glance
Each home impresses with high quality, stylish furnishings and clever details for your everyday life. Designer vinyl floors, electric shutters and modern bathrooms create a feel-good atmosphere. Spacious living areas and plentiful storage offer you extra comfort and convenience.
- Designer vinyl flooring
- Stylish tiles in bathrooms & entrance areas
- Front garden and patio cabinets as well as a garden box
- Car parking space – prepared for e-mobility
- Fiber optic connection
- Solar panels & air-to-water heat pump
Fitted kitchen included
Cooking becomes a joy in your new kitchen: modern, functional and stylishly furnished – exactly how you want it. High quality brand-name appliances from German manufacturers give you longevity you can rely on. Your work top offers plenty of space for food prep, and clever storage solutions keep things tidy and easy.
- Tailor made kitchen
- Granite counter-tops
- High quality kitchen appliances from German manufacturers: oven, induction hob, extractor hood, dishwasher, fridge-freezer & recirculating air filter
- Generous storage space in cupboards & drawers
- Matte white kitchen units with black handles
Sustainable energy use
You can live in a modern and energy efficient home, with the KfN-standard. Our sustainable energy plan, including a central heat pump from our partner OVE, ensures low heating costs and protects the environment. Most of our neighbourhood’s electricity comes from on site solar panels, with surplus energy distributed to individual homes. This ensures energy, and cost, efficient living.
- Highly efficient KfN-standard
- Air-to-water heat pump & solar panels
- Triple glazed insulating windows
- Efficient building thermal insulation
- Comfort Plus ventilation system
MoVida Brackstedt, Wolfsburg – your neighborhood
All your daily needs close at hand
Brackstedt, Wolfsburg is a place where you can enjoy living in a quiet, green setting but still enjoy the best of city life. Your new home is in a peaceful residential area surrounded by greenery and a friendly community – ideal for families and couples. However, Wolfsburg’s nearby and everything you need for your daily life is convenient: supermarkets, pharmacies, bakeries and other shops are easily reachable by car or bicycle.
Daycare, schools and playgrounds are right next door. Local sports clubs and leisure facilities in the area provide plenty of opportunities to stay active and enjoy your free time. The nearby fields and forest paths are always there too, creating a relaxed atmosphere and inviting you outdoors.
In Brackstedt, you get to live close to nature in a peaceful setting – with convenient connections via the B188 and A39 motorways to Wolfsburg, Gifhorn and Braunschweig. It’s the ideal choice for anyone who wants to enjoy a relaxed lifestyle while staying flexible and well connected.
- Peaceful setting surrounded by greenery but close to the city centre
Wolfsburg city centre is only 15 minutes away – combining quality of life and urban connectivity. - Quick connection to Volkswagen headquarters
The Volkswagen plant is only 10 minutes away by car – ideal for commuters working for the company. - Excellent local amenities in the surrounding area
Shops, schools, bakeries and medical facilities are all within easy reach locally. - A wide range of leisure and outdoor activities right on your doorstep
Fields, forests and cycle paths around Brackstedt invite you to relax and unwind in nature.
Project information download
Find out more about the location, facilities and special features here.











