MoVida Roggendorf – your house for rent
Everything you need, right at your doorstep
Roggendorf impresses with an established, quiet residential setting and a reliable supply of everyday essentials. Kindergartens and schools are located in the surrounding villages and are easily accessible. Shopping options for daily needs as well as further services are available within a short distance. Many errands can be comfortably done by bike or car. For a wider range of shopping, medical care, and services, nearby towns and cities are readily accessible. Roggendorf thus combines nature-oriented living with a well-connected infrastructure.
Nature & open space
Life in Roggendorf combines closeness to nature with a pleasant living environment. Green spaces, meadows, and tree stands in the surrounding area create room for relaxation and outdoor activity in daily life. Whether a bike ride, a walk in the countryside, or a brief break in the fresh air – everyday life here can be enjoyed at a relaxed pace. The open surroundings provide a sense of calm and balance, without having to forgo the region’s connectivity and infrastructure.
Excellent transport connections
Roggendorf near Cologne impresses with its convenient location and excellent connectivity to the Cologne urban area. Via the nearby motorways A57 and A1 as well as well-developed arterial roads, Cologne city centre, Ehrenfeld, and other districts are quickly accessible. Public transport with S-Bahn and bus connections provides comfortable access to Cologne’s transport network and enables relaxed commuting. This keeps commutes, leisure options, and urban destinations flexible, fast, and straightforward to reach.
Energy-efficient living
Your new home is highly energy efficient, in line with KfN-standard, and feature sustainable energy systems with air source heat pumps and solar panels. This ensures a pleasant room climate, low running costs and protects the environment.
House Finder
Here you will find all the information and prices for your new home
How to rent your dream home with MoVida
How to rent your dream home with MoVida
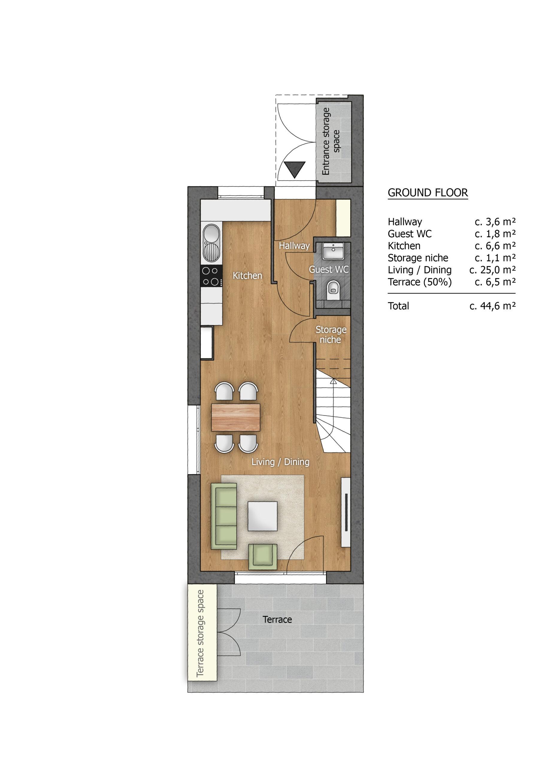
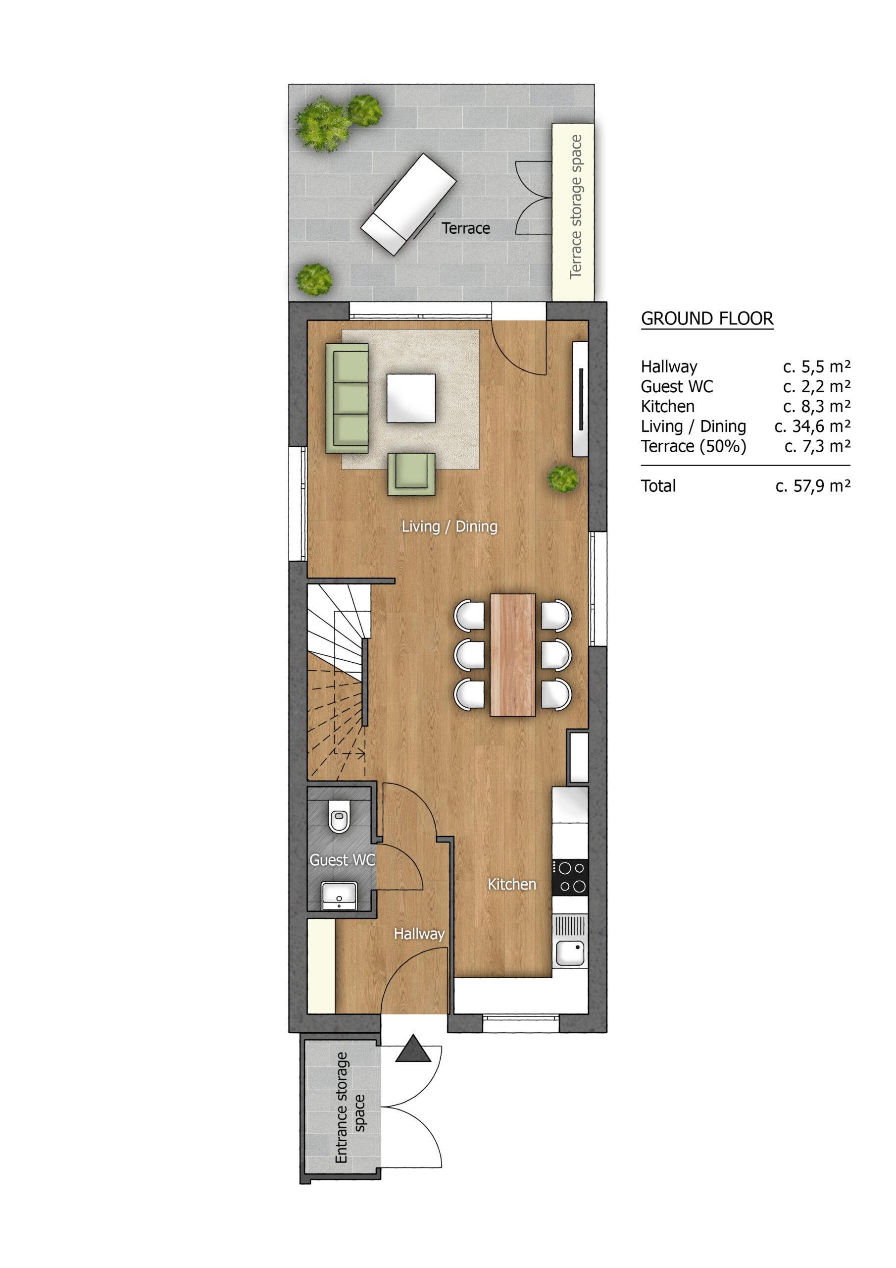
Our house type at a glance
Features & energy efficiency
Features at a glance
Fitted kitchen included
Sustainable energy use
Features at a glance
Each home impresses with high quality, stylish furnishings and clever details for your everyday life. Designer vinyl floors, electric shutters and modern bathrooms create a feel-good atmosphere. Spacious living areas and plentiful storage offer you extra comfort and convenience.
- Designer vinyl flooring
- Stylish tiles in bathrooms & entrance areas
- Front garden and patio cabinets as well as a garden box
- Car parking space – prepared for e-mobility
- Fiber optic connection
- Solar panels & air-to-water heat pump
Fitted kitchen included
Cooking becomes a joy in your new kitchen: modern, functional and stylishly furnished – exactly how you want it. High quality brand-name appliances from German manufacturers give you longevity you can rely on. Your work top offers plenty of space for food prep, and clever storage solutions keep things tidy and easy.
- Tailor made kitchen
- Granite counter-tops
- High quality kitchen appliances from German manufacturers: oven, induction hob, extractor hood, dishwasher, fridge-freezer & recirculating air filter
- Generous storage space in cupboards & drawers
- Matte white kitchen units with black handles
Sustainable energy use
You can live in a modern and energy efficient home, with the KfN-standard. Our sustainable energy plan, including a central heat pump from our partner OVE, ensures low heating costs and protects the environment. Most of our neighbourhood’s electricity comes from on site solar panels, with surplus energy distributed to individual homes. This ensures energy, and cost, efficient living.
- Highly efficient KfN-standard
- Air-to-water heat pump & solar panels
- Triple glazed insulating windows
- Efficient building thermal insulation
- Comfort Plus ventilation system
MoVida Roggendorf – your neighborhood
All your daily needs close at hand
Cologne-Roggendorf stands for relaxed living in a well-connected district with a high quality of life. The combination of a quiet residential setting, green open spaces, and functioning infrastructure creates ideal conditions for a comfortable home — for families as well as couples or working professionals.
Daily life here is particularly efficient: facilities such as nurseries, schools, and medical services are quickly accessible. This is complemented by the proximity to neighbouring districts such as Chorweiler and Worringen, as well as Cologne city centre, which offer a comprehensive range of shopping, services, and employment.
Numerous green spaces, parks, and cycling paths in the area provide balance and leisure. They invite outdoor activity, sports, or relaxed breaks, creating a pleasant contrast to urban everyday life. In addition, local clubs and leisure offerings provide a wide range of opportunities for active participation in community life.
The supply infrastructure in the immediate vicinity is also well organised: supermarkets, bakeries, pharmacies, and other shops for daily needs are within a short distance and easily accessible. Cologne-Roggendorf thus combines urban living with tranquillity, structure, and a high degree of residential comfort.
- Quiet residential location with good connections to the city centre
Relaxed living and yet quickly in the city — Cologne city centre is reachable in approx. 25 minutes. - Comprehensive local amenities in the immediate vicinity
Supermarkets, bakeries, pharmacies, and other daily essentials are located nearby and easily accessible. - Family-friendly living environment with an established neighbourhood
Nurseries, schools, and play areas in the surrounding area, combined with a quiet residential structure, make this location particularly attractive for families and couples. - Diverse leisure and recreational opportunities in the surrounding area
Green spaces, parks, and well-developed cycling paths around Cologne-Roggendorf offer numerous options for exercise, leisure, and relaxation in everyday life.
Project information download
Find out more about the location, facilities and special features here.











