MoVida Brackstedt, Wolfsburg
Leben, wo Innovation zuhause ist –
Miete dein Traumhaus
Nächster Termin am
Sonntag, den 26.04.2026
Uhrzeit: 12-14 Uhr
Open House
Gerberstr. 55b
38448 Wolfsburg
MoVida Brackstedt, Wolfsburg – dein Haus zur Miete
Attraktive Infrastruktur für den täglichen Bedarf
Egal ob Schulen, Kitas, Einkaufsmöglichkeiten oder ÖPNV – in deinem neues Zuhause in Brackstedt bei Wolfsburg bist du rundum gut versorgt. Alles für den täglichen Bedarf erreichst Du schnell und unkompliziert – vieles mit dem Rad oder auch zu Fuß. Die grüne Umgebung mit Feldern, Wäldern und Naherholungsflächen lädt zu Spaziergängen, sportlicher Betätigung oder einfach zum Abschalten ein. Auch das Stadtzentrum von Wolfsburg mit vielfältigen Einkaufs-, Kultur- und Freizeitangeboten ist nur wenige Autominuten entfernt.
Umwelt & Freiraum
Zahlreiche Grünflächen, Feldwege und Radstrecken rund um Brackstedt und die angrenzende Landschaft laden zum Abschalten und Durchatmen ein. Ob entspannter Spaziergang durch die Natur oder eine sportliche Runde mit dem Rad – hier beginnt Erholung direkt vor der Haustür. In Brackstedt wohnst Du ruhig und im Grünen, profitierst aber gelichzeitig von der Nähe zum Stadtzentrum Wolfsburg und einer guten Verkehrsanbindung ins Umland.
Optimale Verkehrsanbindung
Ob mit Auto, Bus oder Bahn – auch in Brackstedt bist Du bestens angebunden. Busverbindungen bringen dich schnell in die umliegenden Ortsteile oder ins Stadtzentrum von Wolfsburg. Die Bundesstraßen B188 und B248 sowie die A39 sind in wenigen Minuten erreichbar und ermöglichen eine zügige Anbindung an Wolfsburg, Gifhorn oder Braunschweig. So bleibst Du im Alltag flexibel und sowohl lokal als auch regional gut vernetzt – ideal für Berufspendelnde, Familien und alle, die eine gute Anbindung schätzen.
Energieeffizientes Wohnen
Alle Einheiten sind als hocheffiziente KfN-Gebäude gebaut und verfügen über ein nachhaltiges Energiekonzept mit Luftwärmepumpe und Photovoltaikanlagen. Das sorgt für angenehmes Wohnklima, niedrige Nebenkosten und leistet einen aktiven Beitrag zum Umweltschutz.
House Finder
Hier findest du alle Informationen und Preise zu deinem neuen Zuhause
So mietest du dein Traumhaus bei MoVida
So mietest du dein Traumhaus bei MoVida
Unsere Haustypen im Überblick
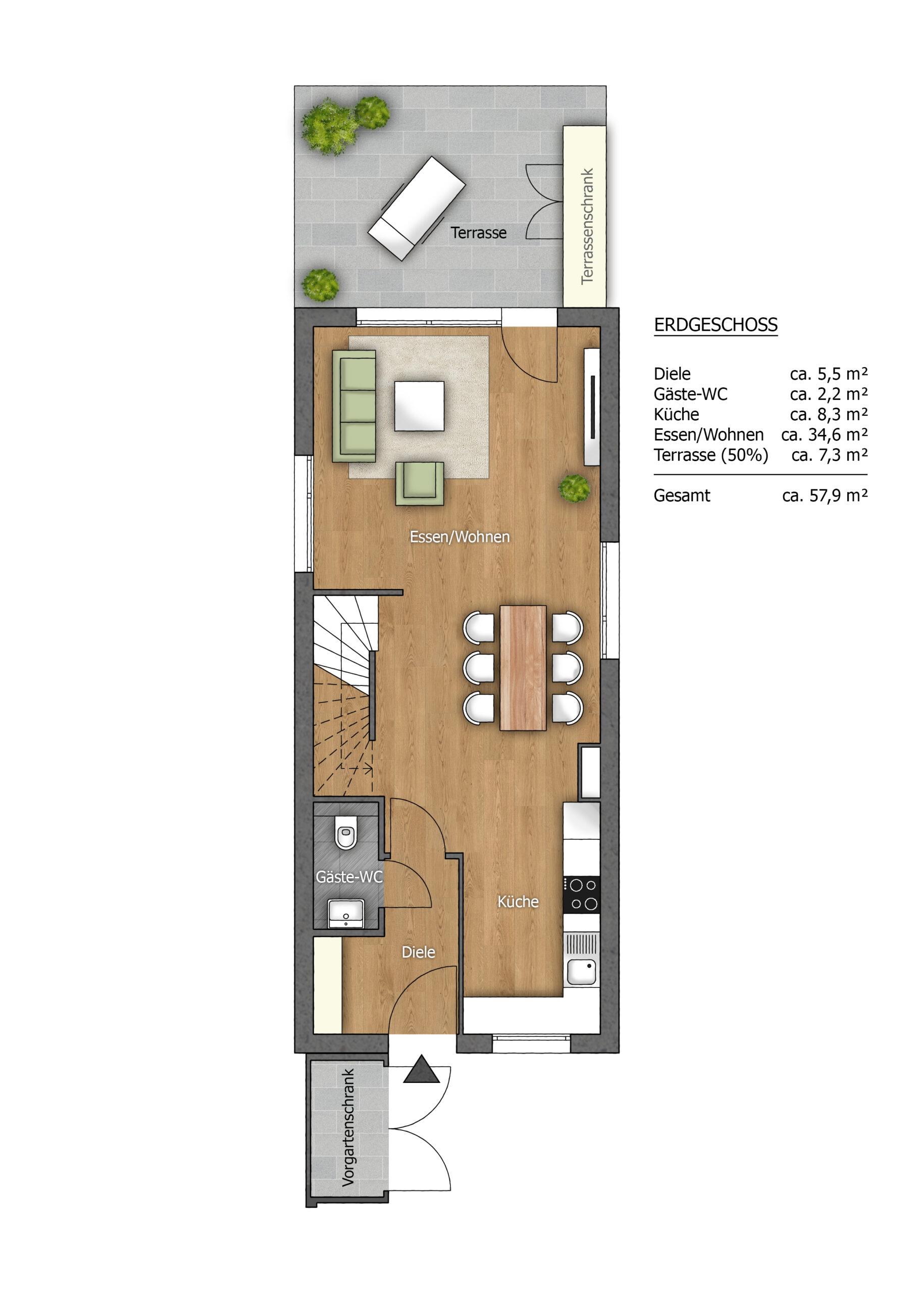
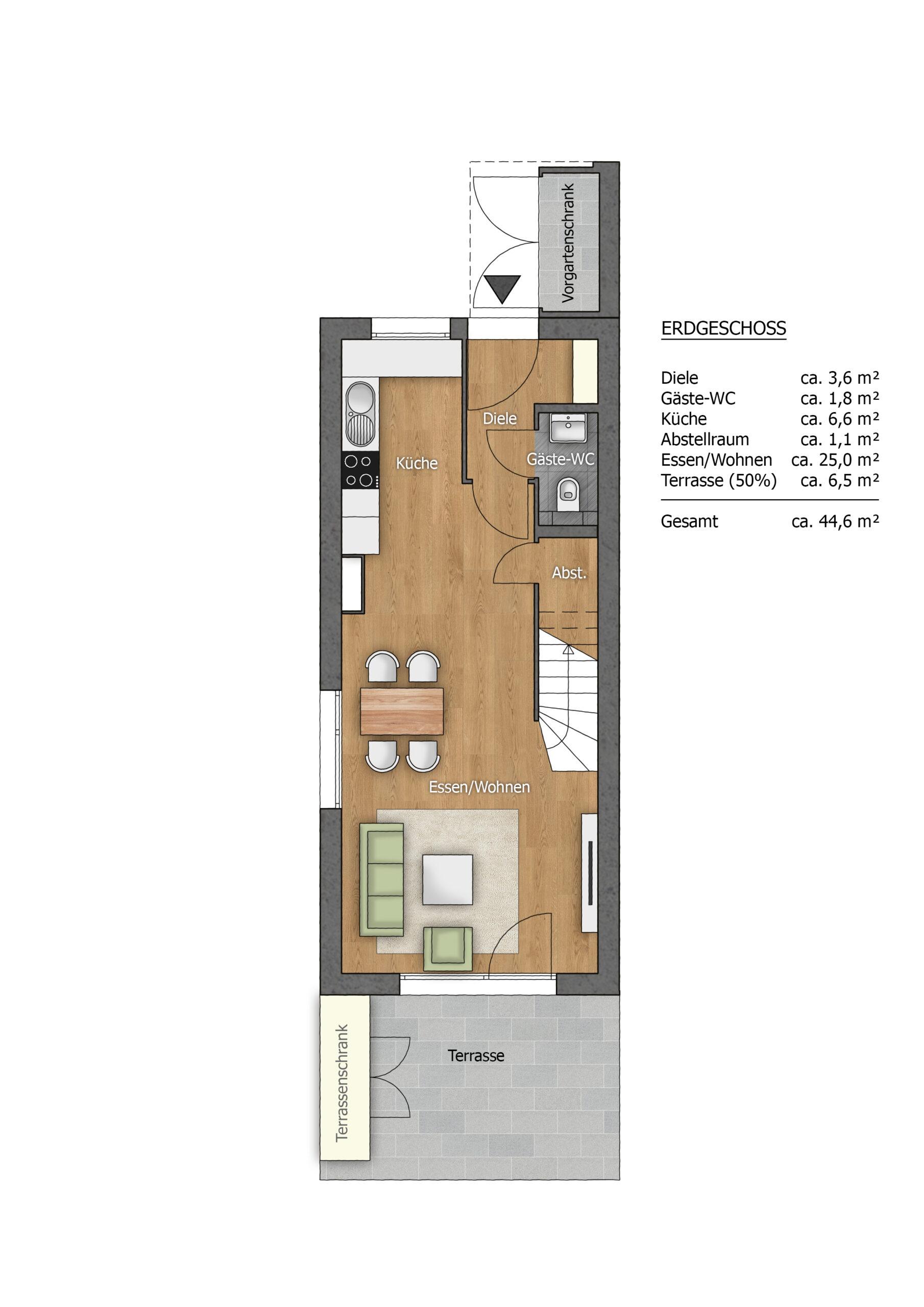
85m² Haus
Dein Zuhause auf den Punkt gebracht
Auf 85m² erwartet dich ein stilvoll gestaltetes Zuhause, das mit einer modernen Einbauküche, einem eigenen Garten und durchdachtem Komfort überzeugt. Ein Ort zum Ankommen und Wohlfühlen – ideal für dich als Paar oder kleine Familie.
145m² Haus
Platz für all die Momente, die zählen
Ob Gartenparty, gemeinsame Essen mit Freunden oder gemütliche Abende – hier entfaltet sich dein Alltag ganz selbstverständlich. Auf 145m² genießt du modernes Wohnen mit fünf Zimmern, eigenem Garten und smarter Technik.
Was steckt hinter der Fassade?
Ausstattung im Überblick
Einbauküche inklusive
Nachhaltige Energienutzung
Die Ausstattungsmerkmale im Überblick
Jede Wohneinheit überzeugt durch eine hochwertige und stilvolle Ausstattung. Von Design-Vinyl-Böden über elektrische Rollläden bis hin zu Bädern mit modernen Sanitärelementen. Mit großzügigen Wohnflächen und praktischen Details wie Gartenboxen und vorgelagerten Schränken wird höchste Wohnkomfort geboten.
- Erstbezug – Neubau
- Eigene Terrasse mit privatem Garten
- Moderne Einbauküche mit deutschen Markengeräten
- Vollautomatische Wohnraumlüftung
- Ausreichend Stauraummöglichkeiten
- Stellplätze mit E-Ladevorrüstung
- Durchdachtes Energiekonzept mit Luft-Wärmepumpe und Photovoltaikanlage
Einbauküche inklusive
In Deiner neuen Küche wird Kochen zum Erlebnis: Modern, funktional und stilvoll gestaltet – hier passt einfach alles. Hochwertige Markengeräte von deutschen Herstellern sorgen für Leistung, auf die man sich im Alltag verlassen kann – vom Induktionsfeld über den Geschirrspüler bis hin zum Backofen. Die Arbeitsplatte bietet großzügig Platz zum Vorbereiten, während durchdachte Stauraumlösungen Ordnung schaffen und den Alltag erleichtern.
- Maßgeschneiderte Küchenzeile
- Moderne und hochwertige Küchengeräte von deutschen Herstellern: Backofen, Induktionsfeld, Dunstabzugshaube, Geschirrspüler, Kühl-Gefrierkombi und Umluftfilter
- Großzügiger Stauraum in Schränken und Schubladen
- Mattweiße Küchenfronten mit schwarzen Griffleisten
- Granit-Spültischarmatur
Nachhaltige Energienutzung
Du wohnst modern und energieeffizient im KfN-Standard. Das nachhaltige Energiekonzept mit unserem Partner OVE sorgt für niedrige Nebenkosten und und schont die Umwelt. Eine zentrale Wärmepumpe liefert nachhaltige Nahwärme. Der Strom stammt überwiegend aus der eigenen Photovoltaikanlage; überschüssige Energie wird auf die einzelnen Häuser verteilt. Das ermöglicht eine besonders effiziente Nutzung der Ressourcen und sorgt für energieeffizientes Wohnen.
- Hocheffizienter KfN-Standard
- Luft-Wasser-Wärmepumpe & Photovoltaikanlage
- 3-Scheiben-Isolierverglasung
- Wärmedämmverbundsystem
- Nahwärme aus der eigenen Wärmeerzeugungsanlage im Quartier
- Komfort-Plus-Wohnraumlüftungssystem
MoVida Brackstedt, Wolfsburg – deine Umgebung
Alles für deinen Alltag in der Nähe
Kitas, Schulen und Spielplätze befinden sich in der näheren Umgebung. Auch für Erholung und Freizeit ist gesorgt: Feld- und Waldwege laden zu Spaziergängen oder Radtouren ein, und die grüne Umgebung schafft eine entspannte Atmosphäre im Alltag. Sportvereine und Freizeitangebote in der Region ergänzen das Naherholungsangebot.
Alles für den täglichen Bedarf ist schnell erreichbar: Supermärkte, Apotheken, Bäcker und weitere Einkaufsmöglichkeiten findest Du in unmittelbarer Umgebung – mit dem Auto oder mit dem Rad bequem zu erreichen.
In Brackstedt wohnst Du naturnah und ruhig – mit exzellenter Anbindung über die B188 und die A39 Richtung Wolfsburg, Gifhorn und Braunschweig. Ideal für alle, die entspannt wohnen und trotzdem flexibel bleiben möchten.
- Ruhige Lage im Grünen mit Nähe zur Innenstadt
In nur 15 Minuten ist die Wolfsburger City erreichbar – ideale Kombination aus Wohnqualität und städtischer Anbindung. - Schnelle Anbindung an die Volkswagen-Zentrale
Das VW-Werk ist in 10 Minuten mit dem Auto erreichbar. Optimal für Pendler aus dem Konzernumfeld. - Gute Nahversorgung in der Umgebung
Einkaufsmöglichkeiten, Bäcker und medizinische Versorgung sind direkt im Umfeld bequem erreichbar. - Vielfältige Freizeit- und Naturangebote direkt vor Ort
Felder, Wälder und Radwege rund um Brackstedt laden zu Bewegung und Erholung in der Natur ein.
Projektinfos zum Download
Hol dir hier mehr Infos über Lage, Ausstattung und Besonderheiten.











